Flughafenterminal Baden Airport

Studentenwettbewerb 1. Preis
Veröffentlichung in: Baden-TV 2001

Adresse:
Halifax Avenue, 77836 Rheinmünster

Auslobung:
Universität Karlsruhe mit Baden Airpark 2001

Architekt:
Alexander Schork

Leistungen:
Wettbewerbsentwurf
1. Preis

Die Universität Karlsruhe hatte zusammen mit dem Baden Airpark einen Studentenwettbewerb für einen neuen größeren Flughafenterminal ausgelobt.
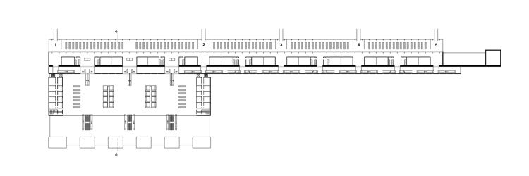
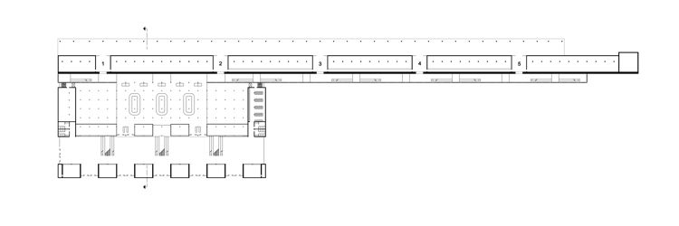
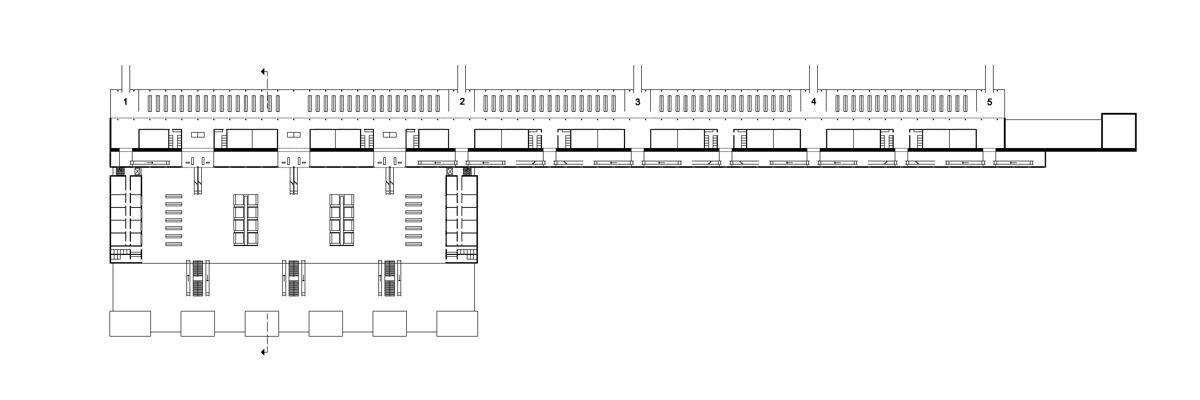
Der Entwurf unterteilt sich in 3 Elemente. Die Flughafenhalle mit Ankunfts- und Abflugebene, den Fluggates mit den Wartehallen und Shops sowie dem Tower.

Alle Elemente werden über eine 200m lange Wandscheibe miteinander verbunden. Auf der Eingangsseite lehnen sich die 3-fach gekrümmten Fachwerkträger der Flughafenhalle gegen die Scheibe. Ebenso auf dieser Seite sind die Zugänge zu den Abfluggates als verglaster Gang mit Rolltreppen über 2 Ebenen an der Wandscheibe vorgelagert. Auf der Seite des Flugfeldes sind die 2-Geschossigen Wartehallen und Shoppingbereich an die Wandscheibe anlehnend angeschlossen. Den Endpunkt der Wandscheibe bildet der mehrgeschossige Flugtower.