MFH Neckarterrasse Ludwigsburg

Entwurf Mehrfamilienhaus in Baugemeinschaft

Adresse:
Helfensteiner Straße, Ludwigsburg

Architekt:
Arbeitsgemeinschaft Göhner . Schrade . Schork Göhner & Schrade Architekten, Knittlingen und SCHORK ARCHITEKTEN, Stuttgart

Leistungen:
Entwurf, Baugruppenmoderation

Wohnfläche:
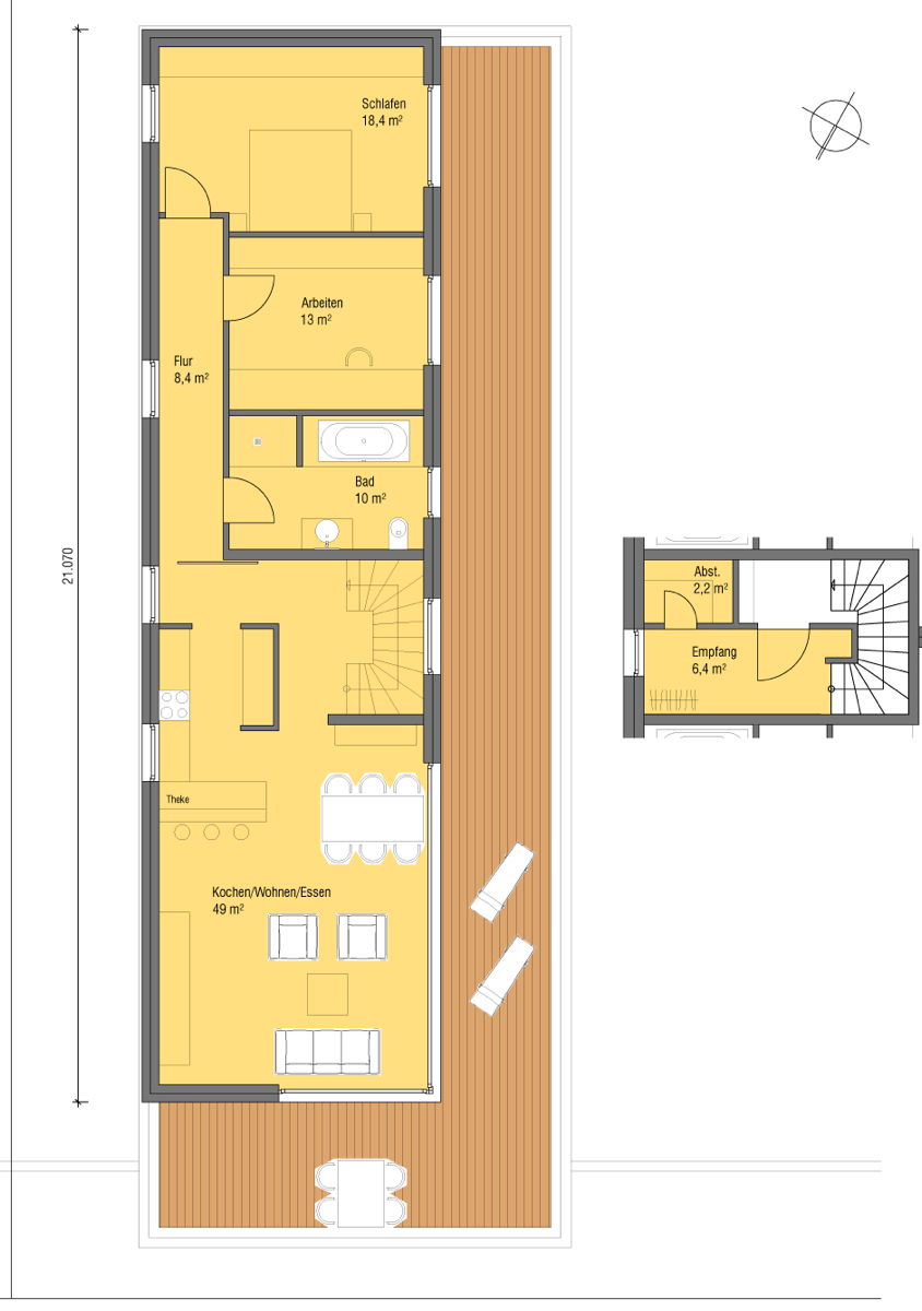
ca. 2 x 143 m2 (Maisonette)
ca. 123 m2 (Penthouse)

Die Stadt Ludwigsburg hatte ein Bewerbungsverfahren für Baugemeinschaften für mehrere Grundstücke auf den Neckarterrassen ausgeschrieben. Der Entwurf der Arbeitsgemeinschaft Göhner.Schrade.Schork für 2 Maisonette- und einer Penthousewohnung wurde von der Stadt ausgewählt.
Anstatt von 3 Reihenhäusern verfolgt der Entwurf eine großzügigere und moderner Aufteilung in 2 Maisonettwohnungen mit offenem Koch-/Ess- und Wohnbereich mit Luftraum und ein Penthouse mit Dachterrasse. Der klare weiße Kubus besticht durch seine großzügigen Öffnungen.

Das Penthouse ist zurückgesetzt und hebt sich durch eine andere Materialität vom Hauptbaukörper ab. Die großzügige Dachterrasse mit Holzdeck bietet einen Ausblick ins Neckartal und die gegenüberliegenden Weinberge.